St. Katharinenspital – Sanierung des Schreiberhauses
Das Spitalschreiberhaus ist Teil eines Ensembles, das sich mit dem Spitalmeisterhaus und dem sogenannten Ökonomiegebäude südwestlich um die St. Katharinenkirche gruppiert.
Durch Umstrukturierung und Änderungen der Betriebsabläufe der Brauerei haben sich hier neue Chancen zur städtebaulichen Reparatur und Weiterentwicklung des Areals eröffnet.
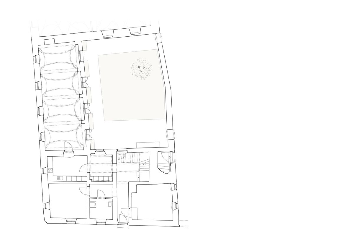
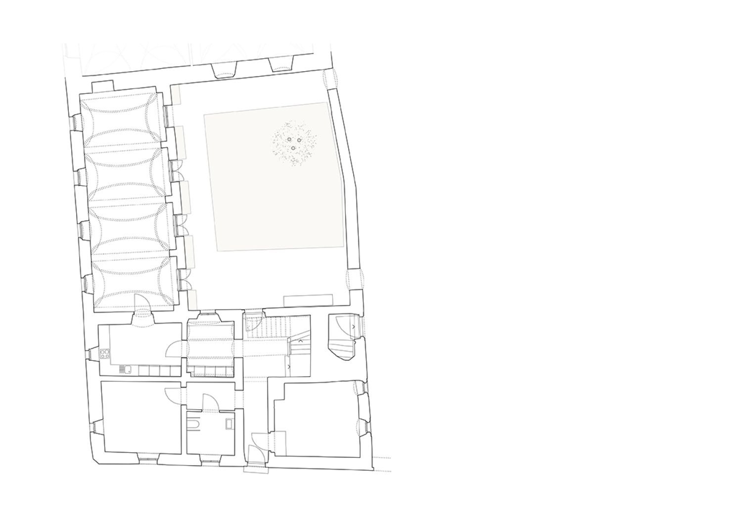
Der zweigeschossige Walmdachbau stammt im Kern aus dem 15./16. Jahrhundert. Im 18. Jahrhundert und erneut ab 1897 bewohnte der Spitalschreiber das Einzeldenkmal. Aufgrund des langen Leerstands war es stark sanierungsbedürftig und wurden denkmalgerecht saniert. In Kooperation mit der Stadt Regensburg wurde das Raumprogramm auf ein „Haus der Vereine“ zugeschnitten, das die Stadt nun angemietet hat und Vereinen aus Stadtamhof, Steinweg und Reinhausen zur Verfügung stellt.
Heute befindet sich im Erdgeschoss ein Saal, ein Besprechungsraum und eine Küche. Im ersten Obergeschoss wurden Büros sowie eine Teeküche mit Lager angeordnet.
Dies entspricht den Sanierungszielen, des Sanierungsgebietes Stadtamhof, welches mit dem Stadtratsbeschluss vom 27. November 2024 um den Bereich des Gries erweitert worden ist.
Fördermittel
Die Sanierung wurde von Bund, Land und der Stadt Regensburg mit dem Städtebauförderprogramm "Lebendige Zentren" unterstützt.
Pläne
Fotodokumentation
Weitere Informationen
©
BBSR
©
Logo Bayerisches Staatsministerium Wohnen, Bau und Verkehr






